Meuble Salle De Bain + Double Vasque Angelo 3 Portes – 120 Cm
Le prix initial était : 304,00 €.98,99 €Le prix actuel est : 98,99 €.
– Marque : Néova
– Garantie : 2 ans
– Fabriqué en France
– Meuble monté d’usine sans pieds
Au choix :
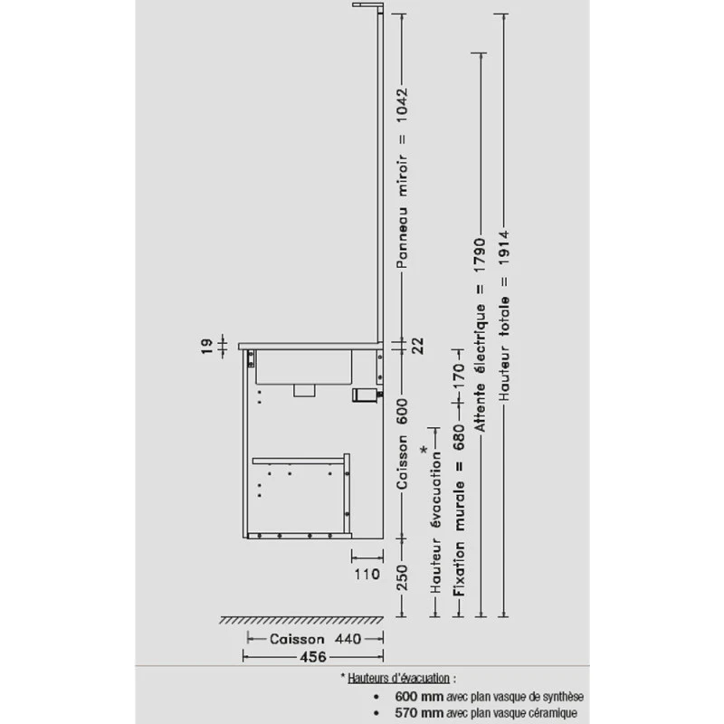
– Double vasque Blanc à encastrer en synthèse de Profondeur 46 cm x Épaisseur 20 mm
– Double vasque Blanc à encastrer en céramique de Profondeur 46 cm x Épaisseur 19 mm
– Corps de meuble : Panneau de Particule Surfacé Mélaminé (PPSM)
– Matière de la façade : Panneau de Particule Surfacé Mélaminé (PPSM)
– Dimensions du meuble : Largeur 120 cm x Profondeur 45,6 cm x Hauteur 60 cm
– 3 portes battantes sous-vasque Hauteur 60 cm
– Corps et façades assortis
– Fermeture douce et silencieuse, Système SOFT-CLOSE
– Avec poignée métal chromée brillante en applique
– Couleurs du meuble au choix
* Robinetterie non inluse
* Miroir et Applique LED non incluses
**Délai de livraison : 5 semaines
- Achetez en toute confiance, soutenu par la qualité.
- Réponses rapides, service au top.
- Période de garantie gratuite de 1 an
- Obtenez le meilleur pour moins cher



















Avis
Il n’y a pas encore d’avis.